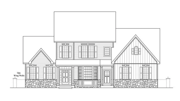
The Lexington
3,400 sf / 4 br / 2.5 ba / 2 car garage
The Lexington
The Lexington Model features a 1st floor owners suite, a grand two-story entrance and an open family room with vaulted ceiling.
The Lexington Model features a 1st floor owners suite, a grand two-story entrance and an open family room with vaulted ceiling. A laundry/mudroom is located on the main level conveniently off the entrance from the 2 car garage. The second floor offers 3 spacious bedrooms, Walk-in closets, a full bathroom and linen closet.
ELEVATIONS
FLOOR PLANS

First Floor

Second Floor

Foundation Plan
All room sizes, configurations and features are subject to change without prior notice. Elevations and drawing are artist’s conceptions and may show optional features. Window and wall offsets vary with elevations. For specific details, please see your sales representative.