The Brandywine
3,700 sf / 4 br / 2.5 ba / 2 car garage
The Brandywine
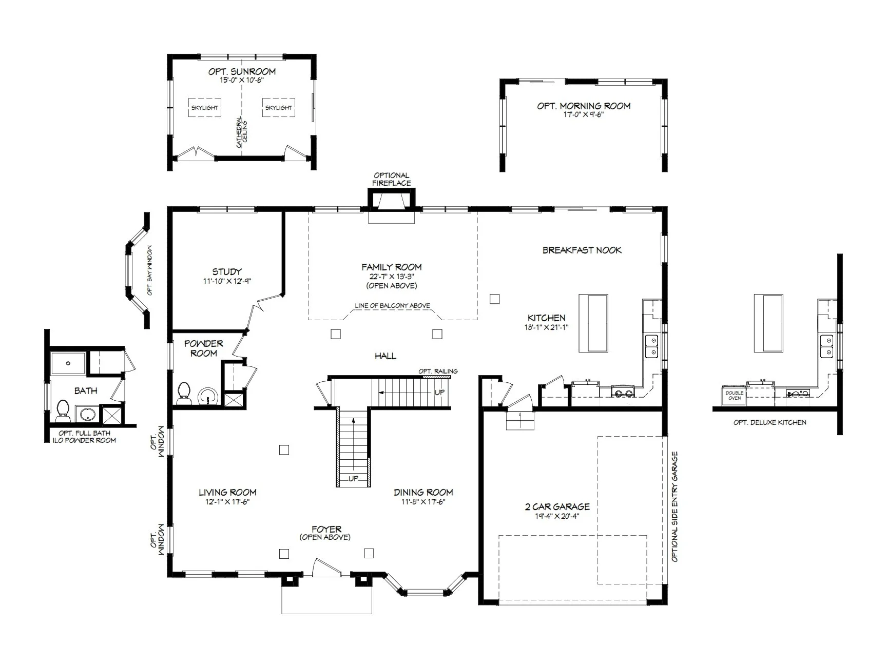
Featuring a two-story foyer and family room, the Brandywine offers a spacious kitchen and breakfast area, formal living and dining rooms and a first floor study.
This stunning luxury home brings flexibility and grandeur to family living. Featuring a two-story foyer and family room, the Brandywine offers a spacious kitchen and breakfast area, formal living and dining rooms and a first floor study. A rear staircase leads to the dramatic owner’s suite with dual walk-in closets, spacious sitting room and luxury bath with corner soaking tub and separate linen and water closets. Additions include a sunroom, morning room or second floor balcony.
ELEVATIONS
FLOOR PLANS

First Floor

Second Floor

Foundation Plan
PHOTOS



































INTERACTIVE HOME TOURS
All room sizes, configurations and features are subject to change without prior notice. Elevations and drawing are artist’s conceptions and may show optional features. Window and wall offsets vary with elevations. For specific details, please see your sales representative.